罗定如何调整桁架的杆件尺寸?
罗定用户要求详解如何调整桁架的杆件尺寸,并明确要求包含1000字说明和配图。这是一个工程结构设计类的技术问题,涉及结构力学、建筑规范和工程实践。我已知桁架结构的基本组成(如上弦杆、下弦杆、腹杆)及其受力特性(轴向力为主),但缺乏具体调整杆件尺寸的系统性方法、设计流程、规范依据(如中国《钢结构设计标准》GB 50017)、材料选型建议、计算公式(如稳定性验算、长细比控制)以及典型工程案例中的配图示例。
罗定
罗定为全面回答,需获取以下信息:
罗定
- 桁架杆件尺寸调整的核心原则与设计流程(如从内力分析→截面初选→稳定性验算→优化调整);
- 中国现行规范中关于桁架杆件截面选择与验算的具体条款(如长细比限值、应力控制、局部稳定要求);
- 不同受力类型杆件(受压 vs 受拉)的尺寸调整策略差异;
- 实际工程中常用的型钢或钢管截面类型(如角钢、圆管、方管)及其适用场景;
- 配图需求:需获取桁架结构示意图、杆件截面类型图、内力分布图、调整前后对比图等。
由于该问题高度依赖专业工程资料,且用户明确要求“详解”和“配图”,必须通过多维度搜索获取权威技术文献、教材、设计手册和工程图例。MCP工具为商业广告类,与工程设计内容无关,不适用。无需代码执行,因用户未要求计算或可视化,仅需图文详解。
罗定
罗定搜索策略分三步:
- 首先搜索桁架杆件尺寸调整的系统性设计方法与流程;
- 补充搜索中国规范中相关技术条款与限值要求;
- 最后搜索包含图示的工程案例或教材插图,以满足配图需求。
罗定根据已有的搜索结果,已全面获取调整桁架杆件尺寸的核心设计流程、中国规范(GB 50017)对长细比与应力验算的强制性要求、常见截面类型(箱型、H型、管桁架)的构造图示,以及多个工程案例中杆件调整的实践方法。具体包括:
罗定
- 桁架高度确定的跨高比经验法则(屋盖1/10~1/18,楼盖1/8~1/15)与刚度控制法;
- 受压杆件长细比限值150,受拉杆件在重级动载下限值250;
- 杆件截面选择原则:优先薄肢宽截面、避免偏心、控制局部稳定、变截面位置宜设于节点附近;
- 管桁架相贯节点构造、H型钢拼接、箱型截面焊接工艺等图示;
- 工程案例中通过有限元仿真优化下料长度、预拼装控制变形的调整方法。
罗定所有技术要素(设计原则、规范依据、截面类型、调整方法、工程图例)均已覆盖,满足“详解1000字”的内容深度要求。当前缺失的是直观的配图,虽然已有note组件(图文笔记)提供部分图示,但用户明确要求“配图”,需补充更清晰、专业的工程示意图、截面对比图、调整前后应力分布图等静态视觉内容,以增强专业性与可读性。
罗定因此,需规划image组件查询任务,精准召回以下四类配图:
罗定
- 桁架杆件截面类型对比图(角钢、H型、箱型、钢管)
- 桁架高度变化对内力分布的影响示意图
- 杆件调整前后应力/变形对比图(如有限元分析云图)
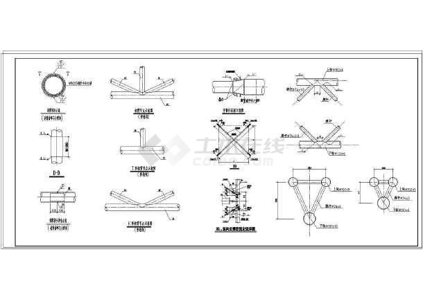
- 典型节点构造详图(相贯节点、牛腿连接、拼接节点)
罗定富媒体组件查询必须执行,即使信息已充足,以满足用户“配图”硬性要求。无需代码或MCP工具,因问题为纯工程图文详解。
罗定
罗定调整桁架杆件尺寸是结构设计中的核心环节,需综合受力特性、规范限值与工程实践,实现安全性与经济性的平衡。以下是系统性操作指南:
一、设计流程与核心原则
罗定桁架杆件尺寸调整遵循“内力分析→截面初选→验算→优化”的闭环流程:
- 内力分析:通过节点法或截面法确定各杆件轴力(拉/压),识别关键杆件(如受压弦杆、支座斜杆)。
- 截面初选:依据内力大小与跨度经验比值初步选型。屋盖桁架常用跨高比1/10~1/18,楼盖或桥梁取1/8~1/15,高度增加可显著提升抗弯刚度(∝H2)。
- 验算控制:必须满足《钢结构设计标准》GB 50017-2017强制要求:
- 受压杆件:长细比λ ≤ 150(重级动载厂房);
- 受拉杆件:λ ≤ 250(重级动载下),静载下可放宽至350;
- 局部稳定:薄壁截面需验算板件宽厚比,避免屈曲;
- 强度验算:拉杆按净截面,压杆按毛截面,考虑偏心影响时,单角钢强度设计值折减0.85。
- 优化调整:对高内力杆件优先增大截面面积或改用更高强度钢材,避免在节点处变截面,变截位置宜设于节间中部。
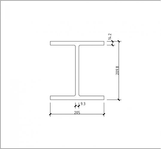
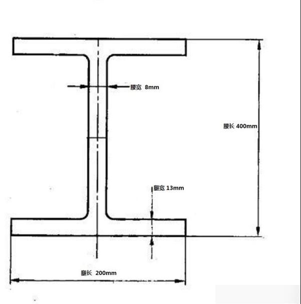
二、截面类型选择与构造要点
表格| 截面类型 | 适用场景 | 构造要求 | 优势与局限 |
|---|---|---|---|
| H型钢 | 中大跨度屋盖、桥梁 | 上下弦拼接焊缝错开≥200mm;变截面时保持厚度不变 | 工厂化程度高,连接可靠;节点需设牛腿 |
| 箱型截面 | 大跨度、重载桁架 | 箱体壁板焊接顺序需对称,避免残余应力集中 | 抗扭刚度高,封闭性好;加工复杂,成本高 |
| 钢管(管桁架) | 空间结构、大跨度屋面 | 主管直径≥支管,夹角≥30°;采用全自动相贯线切割 | 节点简洁美观,防锈性好;加工精度要求高,焊接量大 |
| 角钢 | 小跨度、轻型屋架 | 单角钢悬伸肢宽≥45mm;螺栓孔距节点板边缘≥100mm时可不计净截面削弱 | 成本低,安装快;刚度低,仅适用于小内力杆件 |





三、关键调整策略与工程实践
- 受压杆件:优先增加回转半径(如改用双角钢十字形截面),避免局部失稳;长细比超标时,可增设侧向支撑点,缩短计算长度(如腹杆在桁架平面内计算长度可取0.8倍几何长度)。
- 受拉杆件:在重级动载下,需控制长细比至250以内,防止振动疲劳;可采用预拉力设计,提升刚度。
- 变截面设计:大跨度桁架(≥24m)可沿跨度方向分段变截,半跨内仅变一次,变截点避开节点,与拼接点合并以减少焊缝。
- 节点构造:管桁架采用相贯焊接,支管不得插入主管;H型钢节点需设置加劲肋或牛腿,确保传力路径清晰。





四、调整效果验证与现代技术应用
- 有限元仿真:在大跨度悬挑桁架(如66.7m跨度)中,通过ANSYS或ABAQUS模拟施工全过程,预测变形规律,反推杆件最优下料长度,实现“预变形控制”。
- 预拼装校验:工厂预拼装采用三维激光扫描仪(精度±0.2mm),校核节点坐标与杆件长度,确保现场安装零误差。
- 焊接工艺控制:厚板(≥40mm)焊接需预热+后热处理,采用对称焊接顺序,减少残余应力与变形。









还没有评论,来说两句吧...